Kiadó családi ház Budapest, 18. ker. Pestszentimrén

Ingatlan • Albérlet

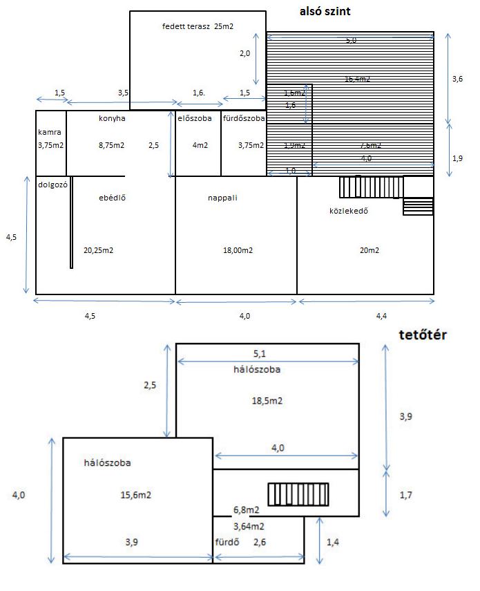
A 18. kerületben Pestszentimrén kiadó családi ház 123 m2-es része (a másik, különálló része lakatlan marad). A ház bútorozott. A ház utcafrontra épült, de az utcai ablakok 3-as üvegezésüek, külső thermoplán, plusz belső üveg, valamint hő- és hangszigetelt redőnnyel rendelkezik. A hálószobák a tetőtérben vannak, azok ablakai az udvarra nyílnak. A ház felújítása nemrégen történt, a festés, mázolás friss. Az alsó részen található az előszoba, innen nyílik a konyha, lenti fürdőszoba, és a nappali. A konyhából nyílik a spejz és az ebédlő. A konyhában újszerű, modern konyhabútor, gáztűzhely, dupla mosogató, mosogatógép található. Az ebédlő egy elszeparált része a dolgozószoba. A nappaliból nyílik egy 20 m2-es szoba, ahonnan fel lehet menni a tetőtérbe. Itt található két hálószoba és egy fürdőszoba. A fűtésről gázcirkó gondoskodik. A ház alatt egy pince is található, ahol ki lett építve a lehetőség vegyes-tüzelésű kazánhoz. A bejárat előtt egy nagy, 25 m2-es fedett terasz van, az udvaron található egy fedett gépkocsibeálló, de akár két kocsi is állhat fedett helyre. A házba a One üvegszálas internet lett bevezetve, de jelenleg - mivel lakatlan, - nincs előfizetve. Az ingatlan adottságait figyelembe véve elsősorban felnőtt, nem dohányzó bérlőt keresek, lehetőleg kisállat nélkül.

Tulajdonságok

  • Alapterület: 123 m²
  • Szobák száma: 5
  • Ingatlan állapota: Felújított
  • Komfortfokozat: Összkomfortos
  • Fűtés típusa: Gáz (cirkó)

Hiányzó tulajdonságok

Amit a hirdető nem adott meg

    Hirdetés címe

    Nincs megadva cím

    Képgaléria
    Egyéb adatok
    • Egyedi azonosító: SG87g1GIw34dGGC0Bu5u
    • Feladás időpontja: 2025. 11. 19. -

    350 000Ft



    Hasonló hirdetések

    amiket érdemes megnézni