Gellérthegy lábánál Sashegyre néző, 2 erkélyes lakás kiadó

Ingatlan • Lakás

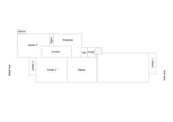
Kiadó a Gellérthegy lábánál egy 76 nm-es, remek adottságokkal rendelkező, frissen festett-mázolt, részben felújított, világos lakás nagyszerű elhelyezkedéssel, zöld környezetben, gyönyörű kilátással (természethez, városhoz egyaránt közel: pár lépésnyire a zöldtől, és minden városi célpont könnyedén és gyorsan elérhető). Elhelyezkedés – Elek utca (Villányi út egyik szép, sok fás mellékutcája a Gellérthegy lábánál) – 2. emeleti (fölötte még van egy szint), lift nincs – nagy és szép közös használatú belső kert – 10-15 perc gyalog a Gellérthegy, Arborétum, Feneketlen-tó, Diószegi játszótér – 5 perc távolságra gyalog Aldi, pékség, patika, MOL BUBI állomás, villamos, éjszakai busz – Móricz Zsigmond körtér villamossal 5 perc – bicikli tárolásra alkalmas helyek lépcsőház földszintjén, zárható előkertben – autópálya 5 percre Szobák – 2 erkély (belső kertre, fenyőfára, illetve utcára néző Sashegyre nyíló kilátással) – 3 különbejáratú szoba + étkező – különálló zuhanyzós fürdőszoba és WC – tágas előszoba – kamra Bútorok és felszereltség A lakás szinte bútorozatlan, beépített szekrényekkel, hűtő, mosogatógép, mosógép, internet. Fűtés: cirkó, melegvíz: villanybojler Műanyag nyílászárók, redőny (minden szobában) Méret: 76 nm Háziállat nem akadály. ÉRDEKLŐDNI az alábbi e-mail címen lehet: trefas40@gmail.com

Tulajdonságok

  • Alapterület: 76 m²
  • Szobák száma: 3
  • Ingatlan állapota: Jó/Beköltözhető
  • Emelet: 2
  • Komfortfokozat: Összkomfortos
  • Fűtés típusa: Gáz (cirkó)

Hiányzó tulajdonságok

Amit a hirdető nem adott meg

  • Falazat anyaga
Hirdetés címe

Nincs megadva cím

Képgaléria
Egyéb adatok
  • Egyedi azonosító: GCDCzCOhr8mVMluwqRVE
  • Feladás időpontja: 2026. 01. 22. -

300 000Ft/hónap



Hasonló hirdetések

amiket érdemes megnézni

Eladó Ózd, Nagy Imre úton gyönyörű lakás
Eladó Ózd, Nagy Imre úton gyönyörű lakás

Ingatlan • Lakás

-

25 000 000Ft

Eladó egy modern, 67 m2 -es, TERASZOS, ÚSZÓMEDENCÉS lakás
Eladó egy modern, 67 m2 -es, TERASZOS, ÚSZÓMEDENCÉS lakás

Ingatlan • Lakás

Budapest, Csenger u. 18a, 1112 Magyarország

85 000 000Ft

Ingatlan • Lakás

-

0Ft